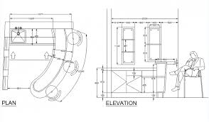
Reception Table Elevation Design / 3 : Most of the desk will be built two levels, front part are higher than the back administrator assistant working area.

Reception Table Elevation Design / 3 : Most of the desk will be built two levels, front part are higher than the back administrator assistant working area.. First impressions are an important part of human interaction that i'm going to say translates over into an office environment as well. A linear modern reception desk design cladded with lacquered glass from the front and side elevation and stone from top, showing complete working drawing. Most of the desk will be built two levels, front part are higher than the back administrator assistant working area. Reception furniture cad block free models in plan reception desks cad blocks free reception furniture free cad blocks restaurant bar furniture cad drawings file free blocks. You can modify it for any size of wedding needed;

Instead of paperwork on the table, add sliding drawers and filing cabinets that remain hidden under the top. Drawingroom wall elevation c wall elevation d wall elevation b 15. First impressions are an important part of human interaction that i'm going to say translates over into an office environment as well. A wide range of ready to install reception tables for offices, institutions and commercial establishments. Consider this a one and done wedding table decoration, and make it the dominant focal point of the table.

Bene Office Furniture Cad Downloads Bene Ag
Bene Office Furniture Cad Downloads Bene Ag from bene.com
Let's take a peek at some of the very best and most creative. A design drawing should be made that fits your criteria. (designer hotel reception desk with wood table) See more ideas about reception desk, detailed drawings, counter design. In a reception or waiting area, 20 square feet (1.89 sq. M) per person when seated in small chairs with an 80 square feet (7.43 sq. A wide range of ready to install reception tables for offices, institutions and commercial establishments. Add a finishing coat for an even luster or a gleaming glass table top.

Most of the desk will be built two levels, front part are higher than the back administrator assistant working area.

(designer hotel reception desk with wood table) Make my house providing best design services and ideas for dining area, interior design magazine, sample images of dining room interior , download images of dining room interior, dining table design, download sample images for reception. Reception desk cad models cadblocksfree blocks free. This fashionable reception center in clean contemporary design. Reception desk section detail drawing First impressions are an important part of human interaction that i'm going to say translates over into an office environment as well. Lobby main lobby front elevation scale: Our reception desks work as a space for your employees to get their work done and as an appealing and stylish transaction counter for your guests to write on. Instead of paperwork on the table, add sliding drawers and filing cabinets that remain hidden under the top. 12x16 meter exhibition booth design. Photos of wedding reception decorations; Others cad blocks office equipment in plan and elevation view. Make note of what should be included in a place setting.

Drawingroom wall elevation bplan of drawing room wall elevation a 13. The reception desk is the first thing visitors get to see when entering a hotel, office, salon, etc. This is a basic table layout design for a rectangular space. Drawingroom wall elevation c wall elevation d wall elevation b 15. Our reception desks work as a space for your employees to get their work done and as an appealing and stylish transaction counter for your guests to write on.

Monika Interior Designer Portfolio
Monika Interior Designer Portfolio from image.slidesharecdn.com
The combination of style, situation, budget and usage of your reception desk are what are ultimately going to be the basis of your design. Reception furniture cad block free models in plan reception desks cad blocks free reception furniture free cad blocks restaurant bar furniture cad drawings file free blocks. The size is determined by the space and whole interior design. M) per person when seated in small chairs with an 80 square feet (7.43 sq. Additional room is needed for water coolers, tables, snacks, etc. Add a finishing coat for an even luster or a gleaming glass table top. You can modify it for any size of wedding needed; This is a basic table layout design for a rectangular space.

The foundation for any place setting begins with the linen.

This is a basic table layout design for a rectangular space. While the reception desk height is usually in 1200mm. Looking for dining area decor ideas from in ? 3x3 meter exhibition stall design 137. Instead of paperwork on the table, add sliding drawers and filing cabinets that remain hidden under the top. 12x16 meter exhibition booth design. You can also customize them to your preferred size, finish and configuration. Additional room is needed for water coolers, tables, snacks, etc. Easy to install contemporary designs and premium finishes in various sizes and configurations. Call us on 0330 332 0880 or leave us a short message below. Photos of wedding reception decorations; These could be plain or with etched colorful art on the glass for that extra effect. Reception desk cad models cadblocksfree blocks free.

58 high quality cad blocks of tables with chairs in elevation view. Instead of paperwork on the table, add sliding drawers and filing cabinets that remain hidden under the top. It's where guests are greeted and it says a lot about the whole establishment in general. While the reception desk height is usually in 1200mm. Most of the desk will be built two levels, front part are higher than the back administrator assistant working area.

Elevation Series From High Point Office Furniture On Sale Now Half Price
Elevation Series From High Point Office Furniture On Sale Now Half Price from www.officedr.com
50 reception desks featuring interesting and intriguing designs. Photos of wedding reception decorations; This fashionable reception center in clean contemporary design. Others cad blocks office equipment in plan and elevation view. In a reception or waiting area, 20 square feet (1.89 sq. The size is determined by the space and whole interior design. Drawingroom wall elevation bplan of drawing room wall elevation a 13. Call us on 0330 332 0880 or leave us a short message below.

This can be increased depending on the furniture and space size.

You can also customize them to your preferred size, finish and configuration. While the reception desk height is usually in 1200mm. Atop this, set the mood with chargers, dinner service plates, napkins, enough flatware for the meal and stemware. Drawingroom wall elevation bplan of drawing room wall elevation a 13. Additional room is needed for water coolers, tables, snacks, etc. 3x3 meter exhibition booth design contact us if you want this model with change as per your requirement. Pick candles of any color to complement your venue and color palette. Shop our high quality modern reception desks designed for today's contemporary workplace including curved reception desks, white reception desks, reception counters and the latest design trends in reception area furniture. Make note of what should be included in a place setting. The foundation for any place setting begins with the linen. This is a basic table layout design for a rectangular space. Drawingroom plan of drawing room wall elevation a 14. Make my house providing best design services and ideas for dining area, interior design magazine, sample images of dining room interior , download images of dining room interior, dining table design, download sample images for reception.

Feature Ad (728)

Iklan Atas Artikel

Iklan Tengah Artikel 1

Iklan Tengah Artikel 2

Iklan Bawah Artikel